Rozvádzač Delta B je celozváraný nástenný jednodielny rozvádzač s celosklenenými dverami, ktoré sa vďaka masívnym závesom dajú otvoriť v uhle takmer 180°. Dôležitou súčasťou výrobku sú otvory na káble, ktoré sa nachádzajú na hornej a dolnej stene. Ďalšie dva otvory sa nachádzajú na zadnej stene rozvádzača. Otvory sú utesnené vylamovacími zátkami, ktoré sa dajú vylomiť napr. skrutkovač.
19" zariadenia sú nainštalované na vertikálnych koľajniciach, ktoré sa dajú plynule prispôsobiť hĺbke tela skrine. Perforácia zabezpečuje prirodzenú cirkuláciu vzduchu a chladenie komponentov.
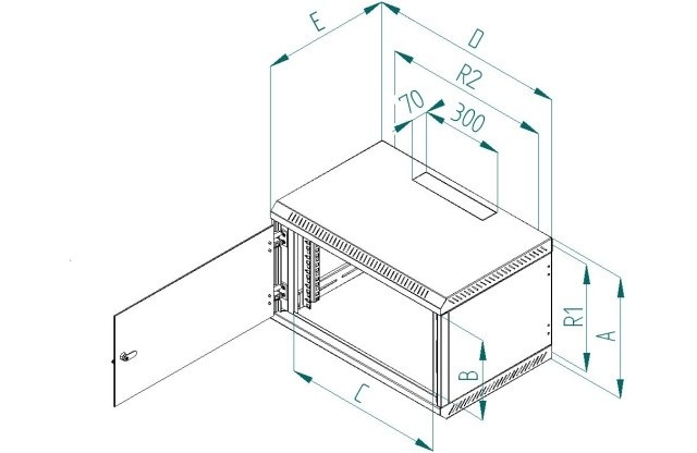
Presné rozmery a ďalšie technické údaje sú uvedené nižšie (hodnoty R1 a R2 označujú vzdialenosť montážnych otvorov na zavesenie rozvádzača na stenu). Maximálne zaťaženie skrinky je 30 kg.
Rozmery:
A - 500 mm
B - 395 mm
C - 490 mm
D - 600 mm
E - 500 mm
R1 - 454 mm
R2 - 420 mm
Hmotnosť - 17,4 kg
Príslušenstvo:
Kľúč - predné dvierka 2x
Skrutka 6x50 4x
Podložka 6,6 4x
Podložka 10 4x
Plastová podložka 8x
Plávajúca matica M6 8x
Skrutka M6x16 8x
Prachová krytka 1x..